Einfamilienhaus Königssee Schkeuditz
Beschreibung
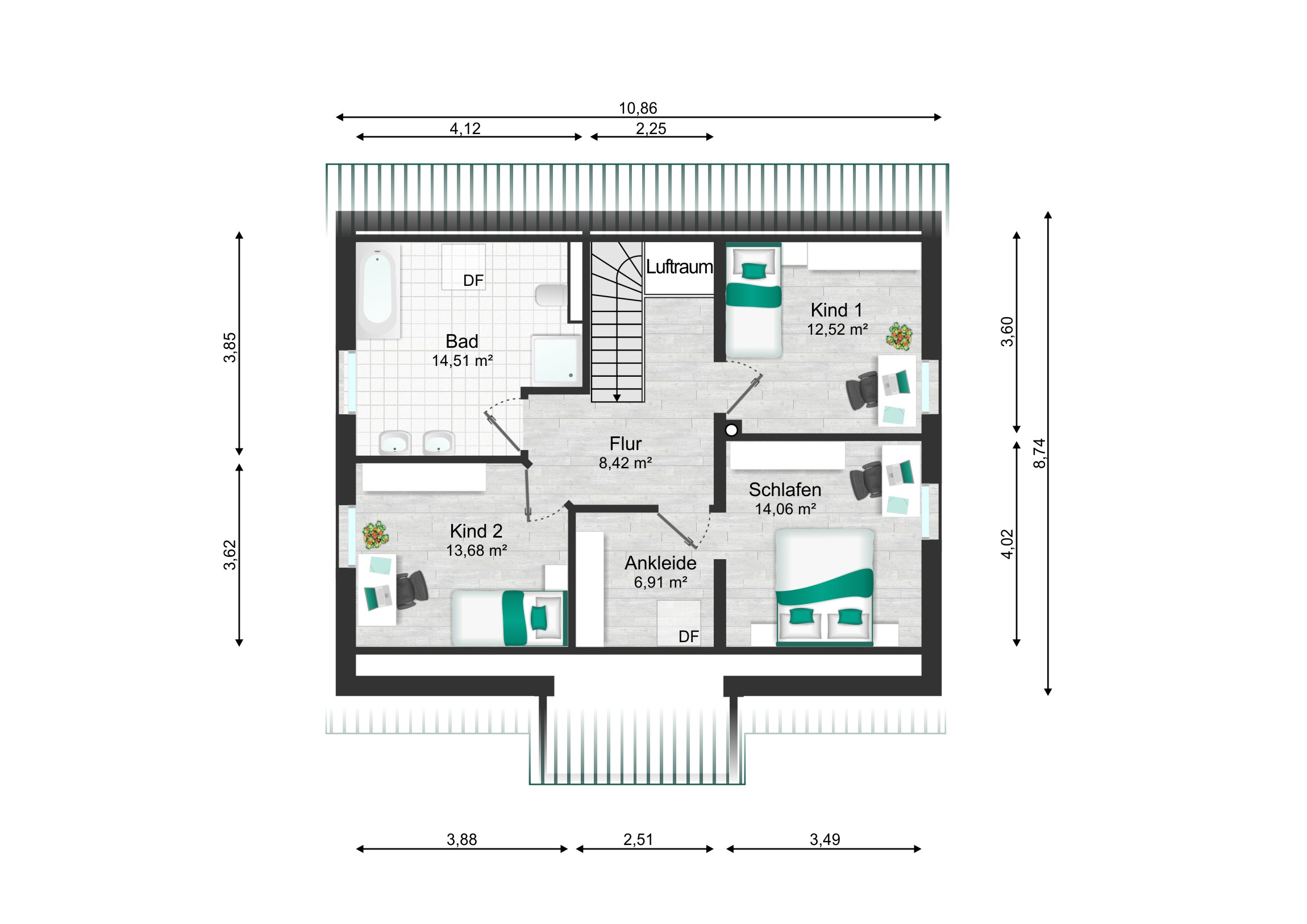
Mitte 2019 hat sich Familie K.R. für unser Einfamilienhaus Königssee in Schkeuditz entschieden. Bei der Planung standen mehrere Grundrissideen zur Auswahl – die Entscheidung fiel nicht leicht, doch schließlich entstand ein Zuhause, das genau zu den Wünschen der Familie passt. Besonders wichtig war der Wunsch nach einem gemütlichen Wintergarten, der auch an trüben Tagen ein heller Rückzugsort ist. Ein weiteres architektonisches Highlight ist der offene Luftraum im Eingangsbereich, der dem Dachgeschoss eine besondere Großzügigkeit verleiht.
Besonderheiten
- Hausverkleinerung um 10 m²
- Rohdrempelerhöhung auf 1,00 m
- Fenster farbig foliert
- Wintergarten mit sommerlichen Verschattung
- Luftraum im Dachgeschoss
- zusätzliche Dusche im Gäste-WC Erdgeschoss
Eckdaten im Überblick
- Baujahr: 2020
- Nettoraumfläche: 153 m²
- Baustoff: Poroton T10 ohne zusätzliche Dämmung

Einfamilienhaus Königssee
Klassisches Design trifft auf Flexibilität, das Einfamilienhaus Königssee für individuelle Wünsche.
Einfamilienhaus KönigsseeIhre Nachricht an uns
Nutzen Sie unser Kontaktformular, um uns schnell und einfach eine Nachricht zu senden.
Wir freuen uns über Ihr Interesse und auf Ihre Nachricht, die wir im Rahmen unserer Sprechzeiten schnellstmöglich beantworten werden!