Einfamilienhaus Königssee in Nienburg
Beschreibung
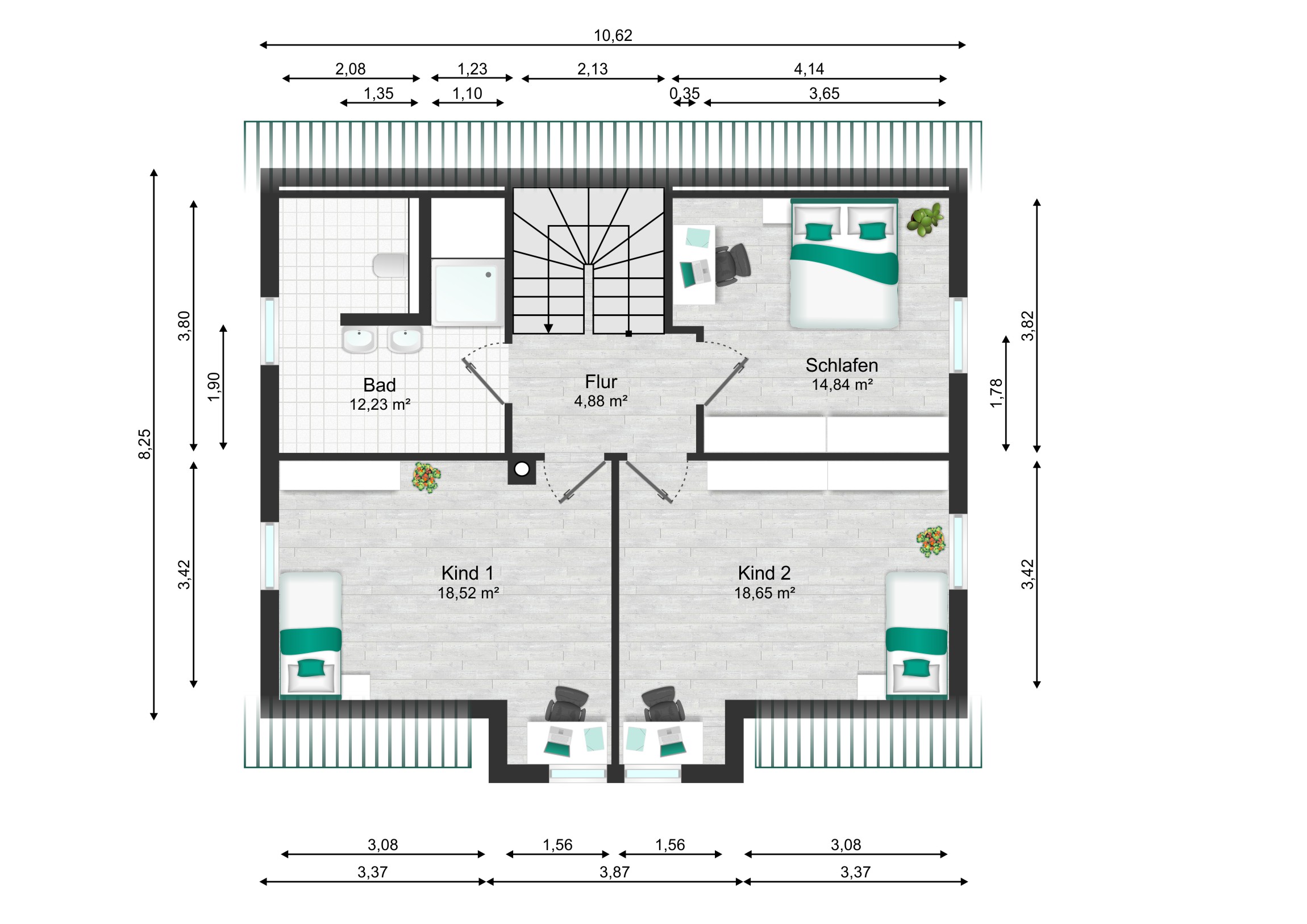
Familie T. aus Nienburg hat unser Einfamilienhaus Königssee mit Unterkellerung gebaut und den Grundriss ganz nach den eigenen Vorstellungen angepasst. Der Hauswirtschaftsraum wurde ins Kellergeschoss verlegt, wodurch im Erdgeschoss zusätzliche Wohnfläche entstand. Auch die Treppe wurde verändert: Statt der Standardlösung wählte die Familie eine halbgewendelte Variante, die an die Außenwand verlegt wurde und so eine harmonische Verbindung zwischen den Etagen schafft. Ein besonderes Highlight ist der Kapitänsgiebel, der nicht nur von außen ein Blickfang ist, sondern auch das Wohn- und Esszimmer auflockert und mit zusätzlichem Tageslicht bereichert. Die Küche wurde bewusst geschlossen geplant, bietet jedoch dank der Terrassentür einen direkten Zugang in den Garten. Im Dachgeschoss sorgt eine Drempelerhöhung für mehr Raumgefühl und zusätzliche Stellmöglichkeiten. Hier entstanden zwei großzügige Kinderzimmer, die durch den Giebel noch heller und weitläufiger wirken und vom Schreibtisch aus sogar den direkten Blick in den Garten ermöglichen. So wurde das Haus Königssee zu einem Zuhause, das perfekt auf die Wünsche und Bedürfnisse von Familie T. zugeschnitten ist.
Besonderheiten
- Unterkellerung
- Kapitänsgiebel
- Rohdrempel auf 1,20
Eckdaten im Überblick
- Baujahr: 2025
- Nettoraumfläche: 210 m²
- Baustoff: Thermo 2+ mit verstärkter Dämmung

Einfamilienhaus Königssee
Klassisches Design trifft auf Flexibilität, das Einfamilienhaus Königssee für individuelle Wünsche.
Einfamilienhaus KönigsseeIhre Nachricht an uns
Nutzen Sie unser Kontaktformular, um uns schnell und einfach eine Nachricht zu senden.
Wir freuen uns über Ihr Interesse und auf Ihre Nachricht, die wir im Rahmen unserer Sprechzeiten schnellstmöglich beantworten werden!