Einfamilienhaus Coburg in Leipzig
Beschreibung
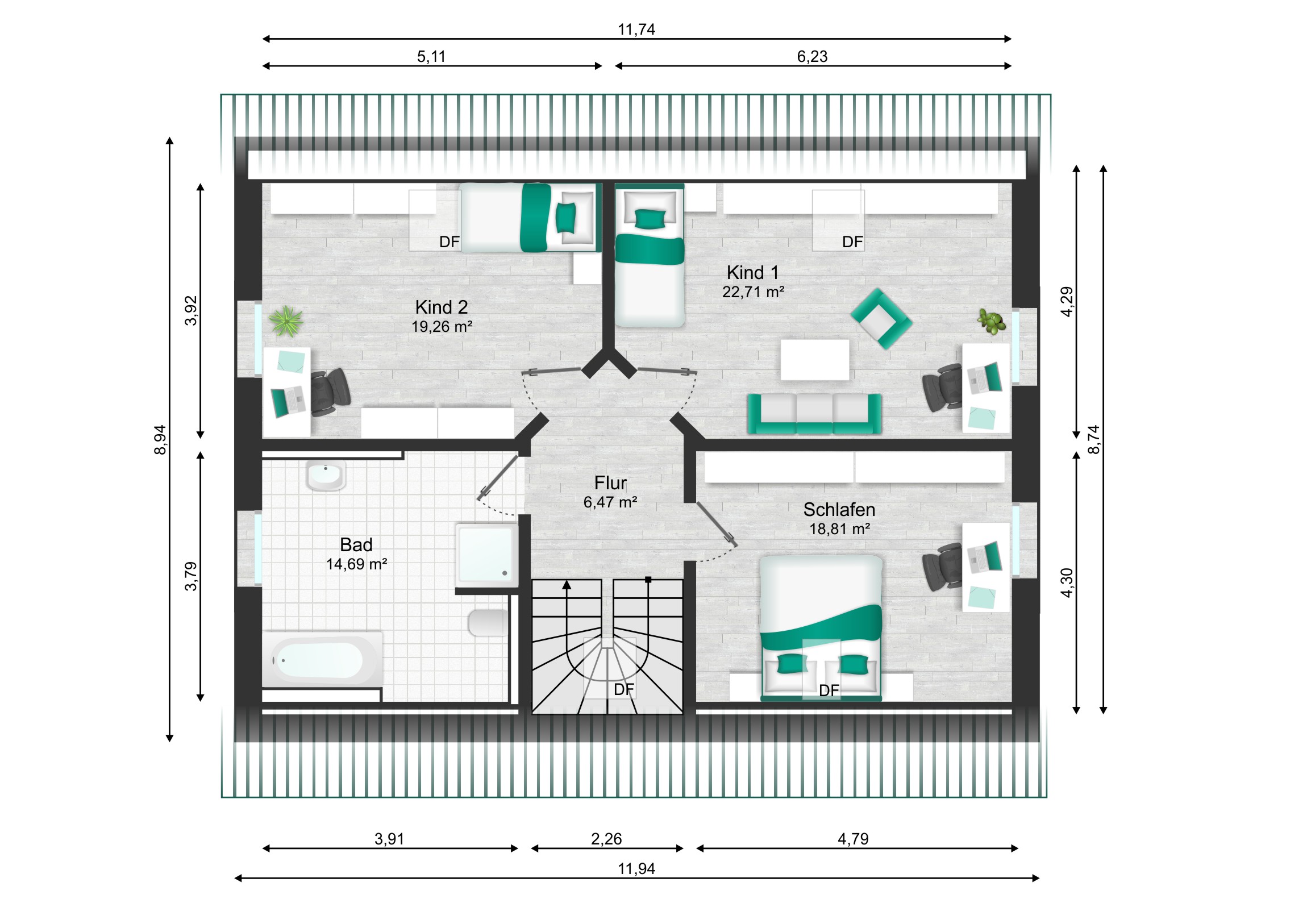
Familie W. hat in Leipzig ihr neues Traumhaus gebaut: das beliebte Haus Coburg, komplett frei geplant und perfekt auf die Wünsche der Bauherren zugeschnitten. Mit einer Nettoraumfläche von 171 m² bietet das Haus nun noch mehr Platz und Komfort, während die gesamte Planung individuell gestaltet wurde – Grundriss und Ausstattung sind so angepasst, dass der ursprüngliche Standard kaum noch erkennbar ist.
Besonders auffällig ist die halbgewendelte Treppe, die die Standardvariante ersetzt, sowie die vier zusätzlichen Dachflächenfenster, die für helle, lichtdurchflutete Räume sorgen. Im Erdgeschoss sorgt eine abgehängte Trockenbaudecke zusammen mit der erhöhten Rohbauhöhe von 2,875 m für ein großzügiges Raumgefühl. Der Rohdrempel von 1,00 m schafft mehr Kopffreiheit im Dachgeschoss, während Kalksandstein mit zusätzlicher Dämmung für ein gesundes Wohnklima sorgt.
Besonderheiten
- Hausvergrößerung für mehr Platz und Komfort
- Abgehängte Trockenbaudecke im Erdgeschoss
- 4 zusätzliche Dachflächenfenster für mehr Licht
- Rohdrempel von 1,00 m
- Erhöhte Rohbauhöhe im Erdgeschoss auf 2,875 m
- Außen farbig folierte Fenster und Haustür
- Halbgewendelte Treppe statt viertelgewendelt
- Freie Planung nach den individuellen Wünschen der Bauherren
Eckdaten im Überblick
- Baujahr: 2020
- Nettoraumfläche: 171 m²
- Baustoff: 24 cm Kalksandstein und 10 cm Dämmung

Einfamilienhaus Coburg
Flexibles Wohnen auf höchstem Niveau, das Einfamilienhaus Coburg mit Raum für individuelle Wünsche.
Einfamilienhaus CoburgIhre Nachricht an uns
Nutzen Sie unser Kontaktformular, um uns schnell und einfach eine Nachricht zu senden.
Wir freuen uns über Ihr Interesse und auf Ihre Nachricht, die wir im Rahmen unserer Sprechzeiten schnellstmöglich beantworten werden!